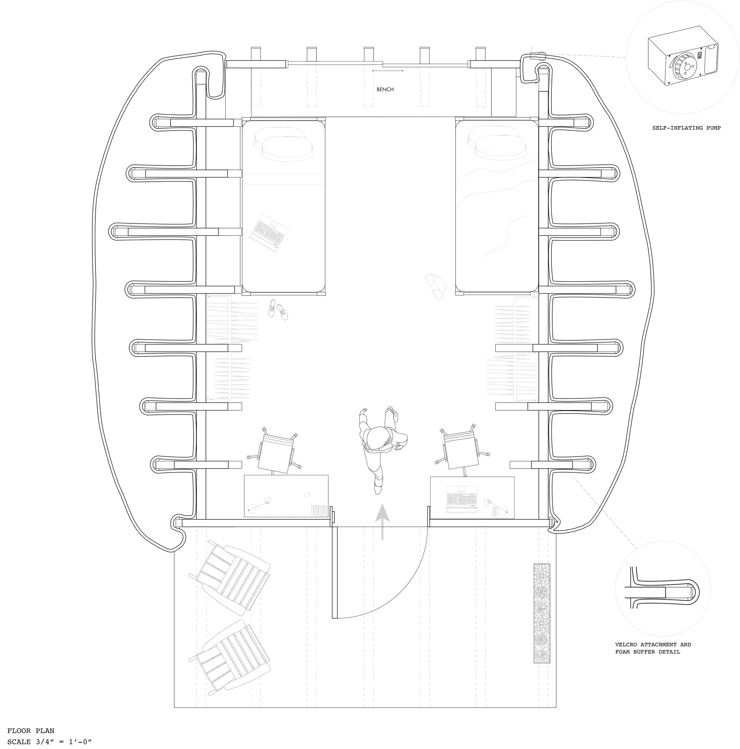
Nest Module Student Housing
Year Spring 2017 | Class DSit 110 Interior Architecture Thesis Studio | Professor Joris Komen
Year Spring 2017 | Class DSit 110 Interior Architecture Thesis Studio | Professor Joris Komen